Foto: Grad Bjelovar, Slavica Trgovac Martan

Foto: Grad Bjelovar, Slavica Trgovac Martan

VAŽAN PROJEKT

U Bjelovaru će se graditi moderni centar za djecu s razvojnim teškoćama: ''Bit će to nadstandard''

''U novu zgradu preselit će se predškolska i osnovnoškolska djelatnost, a istodobno će se uvesti i srednjoškolski program za najmanje dva pomoćna zanimanja'', istaknula je Jasmina Vuković, ravnateljica Centra za odgoj, obrazovanje i razvojnu podršku

Nakon više od dvije godine pripreme, Centar za odgoj, obrazovanje i razvojnu podršku Bjelovar napravio je veliki korak prema novoj, suvremenoj zgradi koja bi trebala donijeti znatno bolje uvjete djeci s teškoćama u razvoju koja pohađaju tu ustanovu, ali i njihovim roditeljima i te stručnjacima koji rade s njima. Na konferenciji za medije u postojećem prostoru Centra na Lebovićevom šetalištu prvi put je javno predstavljeno idejno rješenje budućeg objekta koji će se graditi na sjeveru grada, u neposrednoj blizini nove zgrade područne škole IV. osnovne škole Bjelovar koja je trenutačno u izgradnji.

Novi programi

Ravnateljica Centra Jasmina Vuković naglasila je kako je riječ o složenom projektu jer Centar nije klasična škola, već mjesto gdje se isprepliću odgoj, obrazovanje, terapija i razvoj, i to od najranije pa sve odrasle dobi.

- U novu zgradu preselit će se predškolska i osnovnoškolska djelatnost, a istodobno će se uvesti i srednjoškolski program za najmanje dva pomoćna zanimanja, čime bi Centar prvi put postao cjelovit obrazovni i razvojni prostor za djecu i mlade – istaknula je Vuković.

Ravnateljica je podsjetila da Centar djeluje više od 60 godina, dok je zgrada u kojoj danas rade stara više od 130 godina. Upravo zato novu zgradu opisuje kao ulaganje u budućnost i stvaranje sigurnijih i dostojnijih uvjeta, naglašavajući da je suglasnost Ministarstva znanosti, obrazovanja i mladih za provedbu bila ključan preduvjet da se projekt uopće pomakne iz pripreme prema realizaciji.

Foto: Slavica Trgovac Martan

Foto: Slavica Trgovac Martan

Prezentacija idejnog rješenja je održana u postojećem prostoru Centra/Foto: Slavica Trgovac Martan

Prezentacija idejnog rješenja je održana u postojećem prostoru Centra/Foto: Slavica Trgovac Martan

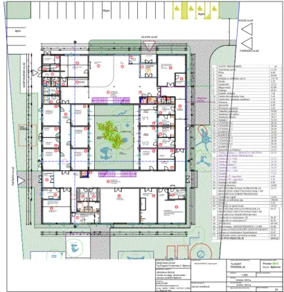
Nova zgrada prostirat će se na 4.448 metara kvadratnih, imat će 36 učionica namijenjenih za provedbu osnovnoškolskog programa, predškolsku, osnovnoškolsku i srednjoškolsku djelatnost, 5.002 metara kvadratna vanjskog prostora te malu sportsku dvoranu.

Koncept komunikacije

Autorica idejnog rješenja, arhitektica Maja Horvat, istaknula je kako je glavni koncept na kojem je projektirana zgrada komunikacija, a pritom se mislilo na komunikaciju među korisnicima, ali i između zgrade i prostora koji je okružuje. Sama zgrada gradit će se na tri etaže, a svi prostori međusobno su povezani.

Predviđeni su i specijalizirani sadržaji, poput senzorne sobe, terapijskih dvorana, hidroterapije i opservacijskih prostora, a poštovani su visoki sigurnost standardi. Kad jednom bude završen, bjelovarski Centar korisnicima će pružati nadstandard.

Gradonačelnik Dario Hrebak pojasnio je kako Grad Bjelovar ima značajnu ulogu u realizaciji ovoga projekta.

Jasnima Vuković, ravnateljica Centra za odgoj, obrazovanje i razvojnu podršku Bjelovar/Foto: Slavica Trgovac Martan

Jasnima Vuković, ravnateljica Centra za odgoj, obrazovanje i razvojnu podršku Bjelovar/Foto: Slavica Trgovac Martan

- Grad platio izradu idejnog rješenja 26 tisuća eura, a u postupku smo kupovine zemljišta na sjeveru grada, što je investicija od oko pola milijuna eura. Lokacija je odabrana i zbog postojeće i planirane infrastrukture jer se u neposrednoj blizini nalazi nova škola – kazao je gradonačelnik, dodajući kako je važno što će Centar biti u blizini redovne škole jer nikome nije cilj da djeca koja će ga pohađati budu izolirana.

Župan bjelovarsko-bilogorski Marko Marušić koji je za novi Centar zajedno s gradonačelnikom lobirao kod ministra Radovana Fuchsa, naglasio je kako je riječ o zajedničkom projektu Grada, Županije i Ministarstva, pri čemu bi nova zgrada trebala služiti ne samo djeci iz Bjelovara, nego i djeci s područja cijele županije i šire. Posebno je istaknuo i širi učinak projekta.

Planirani rokovi

- Nakon preseljenja Centra, postojeća zgrada u kojoj se sada radi stavit će se na raspolaganje Tehničkoj i Obrtničkoj školi, čime će se otvoriti mogućnost rada u jednoj smjeni, što je cilj kojem se teži i na razini cijelog sustava – poručio je župan Marušić.

Inače, u postojećem prostoru Centra za odgoj, obrazovanje i razvojnu podršku Bjelovar trenutno je zaposleno oko 25 stručnjaka koji rade s gotovo 80 djece, a nakon otvorenja novog Centra i jedna i druga brojka će rasti.

Foto: Grad Bjelovar

Foto: Grad Bjelovar

Foto: Grad Bjelovar

Foto: Grad Bjelovar

U Grad Bjelovaru trenutna rade na potrebnim promjenama urbanističkog plana, a uskoro treba započeti i izrada glavnog projekta.

- Ako sve bude teklo prema planu, do jeseni bismo mogli imati izvođača radova te već ove godine krenuti s izgradnjom – vjeruje gradonačelnik Hrebak.

Bjelovarsko-bilogorski župan Marko Marušić/Foto: Slavica Trgovac Martan

Bjelovarsko-bilogorski župan Marko Marušić/Foto: Slavica Trgovac Martan

Foto: Slavica Trgovac Martan

Foto: Slavica Trgovac Martan

Foto: Grad Bjelovar

Foto: Grad Bjelovar

Foto: Grad Bjelovar

Foto: Grad Bjelovar

Foto: Grad Bjelovar

Foto: Grad Bjelovar

Foto: Slavica Trgovac Martan

Foto: Slavica Trgovac Martan

Foto: Grad Bjelovar

Foto: Grad Bjelovar

Bjelovarski gradonačelnik Dario Hrebak/Foto: Slavica Trgovac Martan

Bjelovarski gradonačelnik Dario Hrebak/Foto: Slavica Trgovac Martan

Foto: Grad Bjelovar

Foto: Grad Bjelovar

Foto: Grad Bjelovar

Foto: Grad Bjelovar

Foto: Grad Bjelovar

Foto: Grad Bjelovar

Foto: Grad Bjelovar

Foto: Grad Bjelovar

Foto: Grad Bjelovar

Foto: Grad Bjelovar

Foto: Grad Bjelovar

Foto: Grad Bjelovar

Dobijte informaciju odmah, zapratite nas na Facebooku TikToku!